Back to Results

Sold STC Heol Briwnant, Cardiff, CF14 Guide Price £480,000

3 Bedroom Semi Detached Sold STC Mortgage Calculator

Call Us: 029 20 616 200

Whats Your Home Worth? View Brochure

Property Features

Beautifully presented and spacious family-sized home

3 excellent size bedrooms

Extended open-plan kitchen/family/dining room

Additional Principal Reception Room

2 spacious doubles and 1 x 3/4 size double bedroom

Stylish bath/shower room + g/floor w/c

Private front and rear gardens + open views to front

Ample driveway parking + detached garage/home office

First class Welsh and English school catchments

MUST BE VIEWED TO BE FULLY APPRECIATED

Freehold

Description

*A super-stylish and extended 3 double bedroom semi-detached family-sized home in Rhiwbina* Edwards and Co are delighted to offer for sale this fabulous and enviably located property, with delightful open-views to the front aspect, that offers spacious internal accommodation, detached garage and home office together with private front and rear gardens. NOT TO BE MISSED.

Driveway & Front Entrance

Ample driveway parking are adjacent to front garden and leading to the detached garage/home office. Access gate to rear.

Detached Garage/Home Office

Detached garage with home office to rear. Roller door to garage area and separate access door to home office from the side of the property.

Front Garden

Pretty front garden with lawn and block edging to driveway. Mature planted borders.

Entrance Porch

Art-deco style entrance porch leading to PVC entrance door.

Entrance Hallway

A bright and welcoming entrance hallway that features a staircase leading to the upper floor, adorned with a soft carpet for comfort. The walls are finished in a light colour, enhancing the brightness of the space. The flooring consists of parquet tiles, contributing to a classic aesthetic. Doors off to Principal Reception Room, Kitchen/Family/Dining Room and ground floor wc. Under stairs storage.

Ground Floor WC

Modern facility with close coupled wc and wall mounted wash hand basin. Window and radiator..

Principal Reception Room

The front living room features a spacious layout with natural light flowing in through large windows. The floor is laid with a light wood parquet complemented by a soft rug at the centre of the room. There are built-in shelves that add a touch of character and allow for decorative opportunities. The room is adorned with neutral wall colours, creating a calm and inviting atmosphere. Overall, it offers a comfortable and welcoming space.

Kitchen/family/dining area

Modern open-plan central hub to the home comprising of:

Kitchen

A very stylish and modern kitchen that features a sleek design with a combination of dark cabinetry and light countertops. The layout is spacious and well-structured, allowing for efficient movement and access. The flooring consists of distinct hexagonal tiles, adding a contemporary touch. Ample natural light floods the space through strategically placed windows and a skylight, creating a bright and inviting atmosphere. The overall aesthetic is both stylish and functional, making it ideal for culinary activities. Open plan to family/dining area. Door to side access to garden and home office.

Family/Dining Room

Open plan to the kitchen this room features large patio windows that allow natural light to flood in, creating a bright and airy atmosphere. The space has smooth wood flooring that contributes to a modern aesthetic. It provides access to an outdoor area, enhancing the connection between indoor and outdoor living. The walls are painted in a neutral tone, offering a versatile backdrop suitable for various styles. The layout is open and inviting, ideal for both relaxation and social activities.

Staircase to first floor

Carpeted stairs to first floor.

First Floor Landing

Spacious landing area providing access to all bedrooms and family bath/shower room. Loft access. Window to side.

Bedroom 1

The excellent size double bedroom benefits from abundant natural light, streaming in through large windows overlooking the front aspect. The room features a neutral colour palette and fitted wardrobes. Additionally, the flooring presents a warm wooden finish, contributing to the inviting atmosphere. The overall design promotes a comfortable living environment, ideal for relaxation and rest.

Bedroom 2

Bedroom 2 is another excellent size double bedroom. This light and airy room features a soft pink colour scheme and is well-lit by natural light from a large window. The walls are adorned with decorative elements, creating a cheerful atmosphere. The floor is finished with wooden flooring, complemented by a decorative area rug. The layout allows for versatile use, accommodating various activities comfortably.

Bedroom 3

Even bedroom 3 will accommodate a smaller double bed if desired. This bright and airy room features a spacious layout with natural light streaming through the large window overlooking the front aspect. The walls are painted in a warm yellow tone, enhancing the welcoming atmosphere. The flooring consists of attractive wooden floor boards, adding warmth and a touch of elegance to the space. The overall design incorporates a playful aesthetic, making it ideal for a variety of uses.

Bath/Shower Room

This modern bathroom, fully refurbished earlier this year, features a spacious layout with both a bath and a shower area. Natural light enhances the bright environment, creating a welcoming atmosphere. The walls are adorned with stylish tiles, contributing to a contemporary aesthetic. The flooring is smooth and easy to maintain, ensuring functionality alongside style. Ample space allows for comfortable movement within the room. Ideal for relaxation, this bathroom effectively combines practicality with a modern design.

Home Office

Modern home office to the rear of the detached garage with large window overlooking the rear garden. Power and light and heating.

Rear Garden

A private and enclosed rear garden with well-defined borders, laid mainly to lawn with mature planted borders. Patio area and summer house/storage.

Paved Patio Area

Paved outdoor seating area overlooking the garden area.

Agents Opinion

A beautifully presented and very stylish property in a very enviable location. The property has been comprehensively modernised throughout in it's recent history and represents excellent value for money in today's market.

Disclaimer

These property details are provided by the seller and not independently verified by Edwards and Co. Edwards and Co recommend that buyers should seek their own legal and survey advice. Descriptions, measurements and images are for guidance only. Marketing prices are appraisals, not formal valuations. Edwards and Co accepts no liability for inaccuracies or related decisions.

Anti Money Laundering

MONEY LAUNDERING REGULATIONS: All intending purchasers will be asked to produce identification documentation during the purchasing process and we would ask for your co-operation in order that there will be no delay in agreeing the sale. Edwards and Co are fully compliant with all Anti Money Laundering Regulations as laid out by the UK Government.

Council Tax Band : F

Stamp duty calculation

See full breakdown

Total LTT due

Below is a breakdown of how the total amount of LTT was calculated

Up to £0k (Percentage rate 0 %)

Above £0k and up to £0k (Percentage rate 0 %)

Above £0k and up to £0k (Percentage rate 0 %)

Above £0k and up to £0k (Percentage rate 0 %)

Above £0k and up to £0m (Percentage rate 0 %)

Above £om (Percentage rate 0 %)

Please note: This is for illustrative purposes only. The above calculator should not be relied upon when making financial decisions. Please seek advice from a specialist financial provider.

Local Schools

Location

Street Map

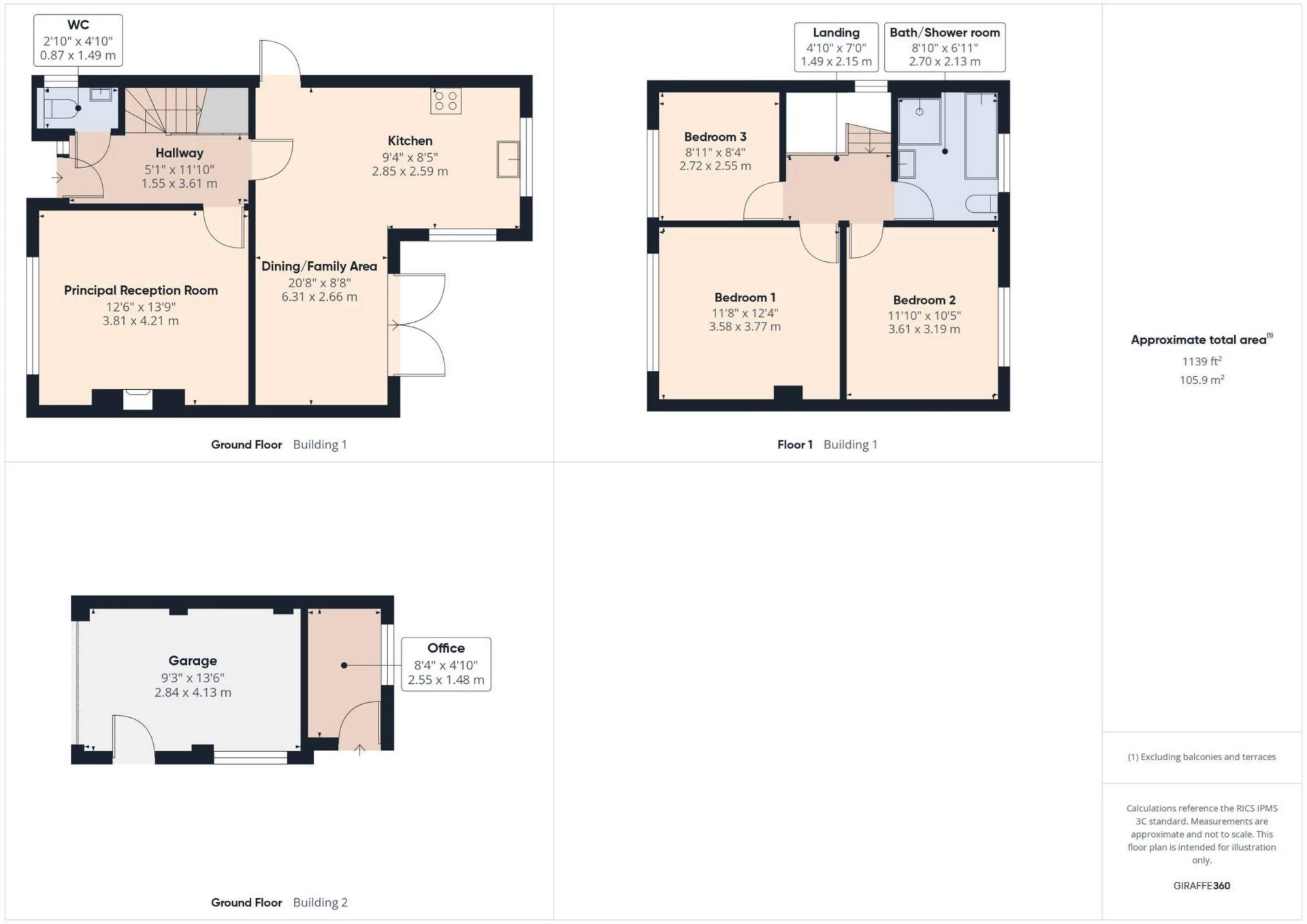
Floor Plans

Ground Floor

Virtual Tour

Arrange a Viewing

Arrange a Viewing

This property is currently Sold STC. However, register your details below and we will contact you if it becomes available again.

Mortgage Calculator

Mortgage Details

Results

IMPORTANT NOTICE

Descriptions of the property are subjective and are used in good faith as an opinion and NOT as a statement of fact. Please make further specific enquires to ensure that our descriptions are likely to match any expectations you may have of the property. We have not tested any services, systems or appliances at this property. We strongly recommend that all the information we provide be verified by you on inspection, and by your Surveyor and Conveyancer.

Main
Kitchen
Principal Reception Room
Bedroom 1
Bath/Shower Room
Driveway & Front Entrance
Detached Garage/Home Office
Front Garden
Entrance Porch
Entrance Hallway
Ground Floor WC
Principal Reception Room
Kitchen/family/dining area
Family/Dining Room
Kitchen
Outside
Additional Picture
Rear Garden
Rear Garden
Home Office
Staircase to first floor
First Floor Landing
Bedroom 1
Bedroom 2
Bedroom 3
Paved Patio Area
Main
Kitchen
Principal Reception Room
Bedroom 1
Bath/Shower Room
Driveway & Front Entrance
Detached Garage/Home Office
Front Garden
Entrance Porch
Entrance Hallway
Ground Floor WC
Principal Reception Room
Kitchen/family/dining area
Family/Dining Room
Kitchen
Outside
Additional Picture
Rear Garden
Rear Garden
Home Office
Staircase to first floor
First Floor Landing
Bedroom 1
Bedroom 2
Bedroom 3
Paved Patio Area

Fees

Letting Fee Information

The asking rent does not include letting fees. Our standard administration fee (which covers general administration and preparation of paperwork) is £xxx (£xxx+VAT). A security deposit, usually equivalent to six weeks rent, is also payable.

Depending on your circumstances and the property you select, one or more of the following may also be charged to you upfront;

Fees may be charged on a per person or per property basis, please call us on 029 20 616 200