Back to Results

For Sale Lon Isa, Rhiwbina, CF14 Guide Price £565,000

3 Bedroom Semi Detached For Sale Mortgage Calculator

Call Us: 029 20 616 200

Request Viewing Whats Your Home Worth? View Brochure

Property Features

Beautiful 3 bedroom semi detached home in Rhiwbina

Excellent location situated in the heart of the garden villa

Dual aspect open plan living room/dining area

Generous second reception room

Superb kitchen and modern family bathroom

Walking distance to Parc-y- and Village centre

Views of Rhiwbina Tennis Court

Planning permission for a double story extension to rear

OFFERED WITH NO ONGOING CHAIN - MUST BE VIEWED

Freehold

Description

*Beautiful grade 2 listed three bed home in the garden village, Rhiwbina* Edwards & Co are delighted to offer for sale this beautiful property offering spacious living accommodation consisting of a stylish reception room to the front opening up to the dining area at the back, a well presented kitchen and second reception room, three good size bedrooms with a modern upstairs bathroom. This desirable property also features a picturesque rear garden with views of the tennis courts behind and a enclosed front garden. The property has also been granted planning permission for a double story extension to the rear! Excellent location, walking distance to all local amenities. MUST BE VIEWED

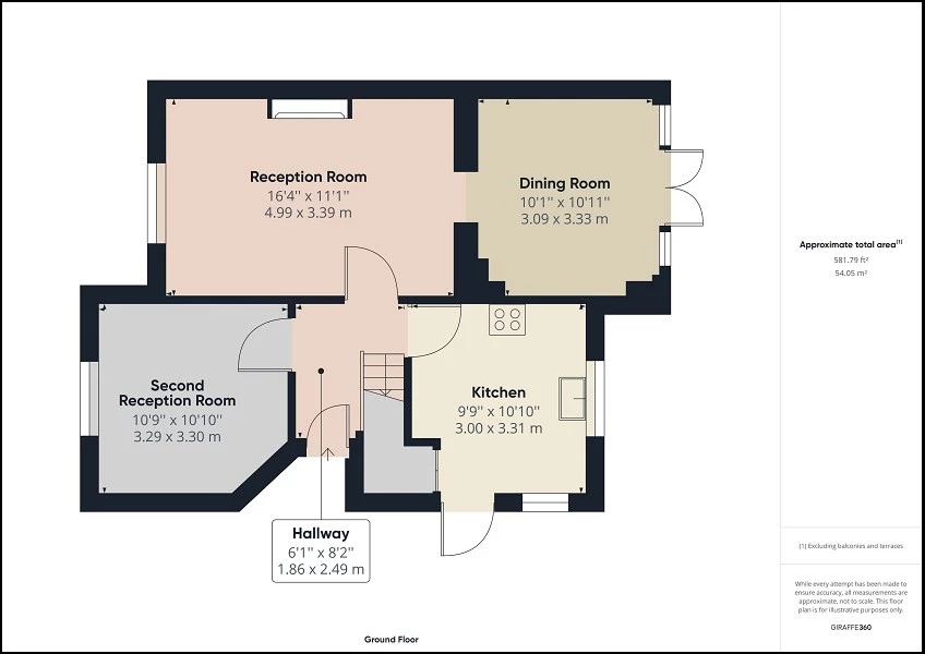
Front & Entrance

Patio walkway to front door, lawn area, mature shrubs and bushes to surround, access to rear garden, mature bush boundary gate access.

Entrance Hallway

Wooden door with obscure glass, tiled flooring, single light pendant,radiator, doors to all rooms.

Principal Reception Room

Parquet flooring, single light pendant, wooden framed sash window to front aspect, radiator, alcoves to chimney breast.

Additional Picture

As described.

Second Reception Room

Parquet flooring, single light pendant,radiator,wooden framed sash window to front aspect.

Dining Area

Two PVC windows to rear aspect, PVC double doors opening up to rear garden,parquet flooring,single light pendant,radiator.

Kitchen

PVC window to rear aspect,wooden sash window to side aspect, a range of base and wall mounted cabinets with wood effect worktops, laminate flooring, part tiled walls, inset sink with draining board,four gas ring hob with oven below , integrated dishwasher,integrated fridge freezer storage cupboard with plumbing for washing machine,cupboard housing boiler,wooden door providing access to the side of the property.

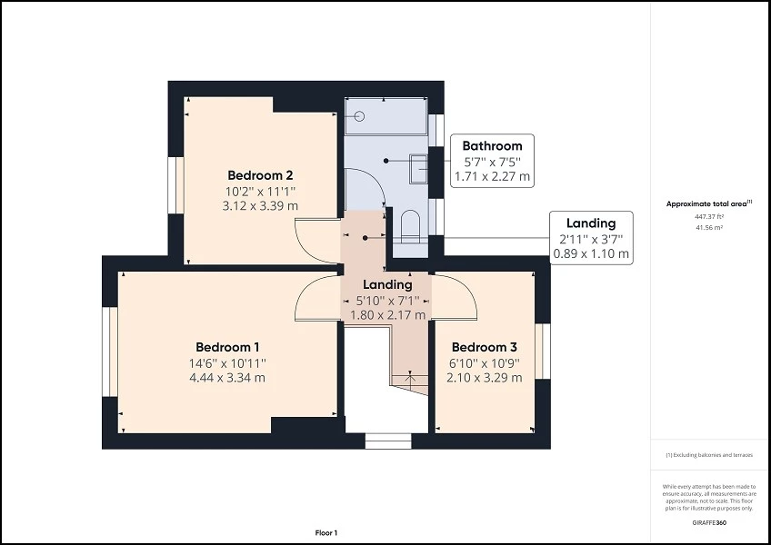
First Floor Landing

Carpet , single light pendant,wooden sash window to side aspect, doors to all rooms.

Bedroom 1

Carpet,single light pendant, wooden framed sash window to front aspect,radiator,fireplace.

Bedroom 2

Carpet,radiator,single light pendant, wooden framed sash window to front aspect,fireplace.

Bedroom 3

PVC window to rear aspect, single light pendant, carpet,radiator.

Bathroom

Tiled flooring,part tiled walls,walk-in shower, spotlights, extractor fan,two PVC windows to rear aspect,wash hand basin with vanity unit,WC,ladder style radiator.

Rear Garden

Patio area,lawn area, mature bushes and shrubs.

Side Access

Plans

Plans 2

Plans 3

Additional Picture 3

Picturesque views of Rhiwbina Tennis Court

Council Tax Band : F

EPC for Lon Isa, Rhiwbina, CF14

EPC graph for Lon Isa, Rhiwbina, CF14

Stamp duty calculation

See full breakdown

Total LTT due

Below is a breakdown of how the total amount of LTT was calculated

Up to £0k (Percentage rate 0 %)

Above £0k and up to £0k (Percentage rate 0 %)

Above £0k and up to £0k (Percentage rate 0 %)

Above £0k and up to £0k (Percentage rate 0 %)

Above £0k and up to £0m (Percentage rate 0 %)

Above £om (Percentage rate 0 %)

Please note: This is for illustrative purposes only. The above calculator should not be relied upon when making financial decisions. Please seek advice from a specialist financial provider.

Local Schools

Location

Street Map

Floor Plans

Ground Floor

Virtual Tour

Arrange a Viewing

Arrange a Viewing

Mortgage Calculator

Mortgage Details

Results

IMPORTANT NOTICE

Descriptions of the property are subjective and are used in good faith as an opinion and NOT as a statement of fact. Please make further specific enquires to ensure that our descriptions are likely to match any expectations you may have of the property. We have not tested any services, systems or appliances at this property. We strongly recommend that all the information we provide be verified by you on inspection, and by your Surveyor and Conveyancer.

Main
Principal Reception Room
Second Reception Room
Bedroom 1
Rear Garden
Kitchen
Kitchen Second Angle
Additional Picture
Dining Area
Additional Picture 2
First Floor Landing
Bedroom 2
Bathroom
Bedroom 3
Side Access
Rear Garden 1
Photo 17
Additional Picture 3
Rear Garden 2
Plans
Plans 2
Plans 3
Photo 23
Main
Principal Reception Room
Second Reception Room
Bedroom 1
Rear Garden
Kitchen
Kitchen Second Angle
Additional Picture
Dining Area
Additional Picture 2
First Floor Landing
Bedroom 2
Bathroom
Bedroom 3
Side Access
Rear Garden 1
Photo 17
Additional Picture 3
Rear Garden 2
Plans
Plans 2
Plans 3
Photo 23

Fees

Letting Fee Information

The asking rent does not include letting fees. Our standard administration fee (which covers general administration and preparation of paperwork) is £xxx (£xxx+VAT). A security deposit, usually equivalent to six weeks rent, is also payable.

Depending on your circumstances and the property you select, one or more of the following may also be charged to you upfront;

Fees may be charged on a per person or per property basis, please call us on 029 20 616 200