Back to Results

For Sale Wenallt Road, Cardiff, CF14 Guide Price £495,000

2 Bedroom Detached Bungalow For Sale Mortgage Calculator

Call Us: 029 20 616 200

Request Viewing Whats Your Home Worth? View Brochure

Property Features

Exceptional 2 double bedroom detached bungalow on Wenallt Ro

Large lounge/dining room opening to rear garden and terrace

2 excellent size double bedrooms with fitted wardrobes

Spacious kitchen/breakfast room with adjacent laundry/utilit

Family bathroom

Ample driveway parking with detached garage

Lengthy rear garden with large paved terrace and stream bord

Potential to improve and extend if desired

Enviably located close to all local amenities

Not to be missed

Freehold

Description

*Much-loved and enviably located 2 double bedroom detached bungalow on very generous plot in Rhiwbina* Edwards and Co are delighted to offer for sale another fabulous property located on the lower end of Wenallt Road and within level walking distance of The Deri Stores and Deri Public House. The property, although requiring general modernisation, appears to be in very good order throughout and offers exceptional potential to extend further if ever desired STPP. Internal viewings are essential to fully appreciate this lovely home.

Driveway & Front Entrance

Block and brick entrance wall leading onto the ample driveway parking area.

Front Garden

Sizeable front garden laid predominantly to lawn with mature planted borders. Adjacent driveway parking area.

Detached Garage

Block and brick built detached garage with up and over garage door. We believe that there is power to the garage.

Main Entrance

PVC entrance door positioned on the side of the property opening into the entrance hallway.

Entrance Hallway

This entrance hallway features a spacious layout with ample natural light streaming in from the window. The decor includes a floral patterned carpet that adds a touch of character to the space. The walls are painted in a neutral shade, enhancing the brightness of the area. Doors lead off to the bedrooms, bathroom, laundry room and kitchen/breakfast room.

Kitchen/breakfast room

The spacious kitchen features ample counter space and an efficient layout, ideal for cooking and meal preparation. Large windows provide natural light, enhancing the open atmosphere. The flooring is practical and easy to maintain, ensuring functionality. The room is designed to accommodate a variety of kitchen appliances, making it suitable for modern living.

Laundry Room

The sizeable utility room features ample floor space that allows for various uses. The room benefits from natural light through windows, enhancing the overall brightness and functionality. The layout facilitates easy movement and access, and the tiled walls and flooring offer practical maintenance options. The design promotes an efficient workflow, ideal for laundry and additional storage needs. Access to an external door provides convenience for garden or outdoor use.

Lounge/Dining Room

This spacious room features a generous, open layout with an abundance of natural light flowing through large windows that offer views of the outdoor area. The flooring is carpeted, contributing to a warm and inviting atmosphere. The room's high ceiling is complemented by decorative features that add character and elegance. The overall neutral colour scheme enhances the sense of space and tranquillity, making it a versatile area suitable for various purposes.

Lounge Area

As described.

Dining Area

As described.

Bedroom 1

This spacious bedroom features soft pastel wallpaper, providing a light and airy atmosphere. The room is enhanced by natural light from a large window, which offers views of the front garden. The expansive floor space offers flexibility for various layout options. There is neutral carpeting, contributing to the overall tranquil aesthetic, while the decorative elements add a touch of character. The bedroom also has fitted wardrobe furniture to 2 walls.

Bedroom 2

Bedroom 2 is another very well-proportioned bedroom that features a light and airy atmosphere with large windows allowing ample natural light to fill the space. The walls are adorned with a delicate floral pattern, adding a touch of elegance. The floor is carpeted. The ample wall space offers potential for personalisation or additional storage solutions. Overall, this bedroom is designed to provide a comfortable and inviting environment.

Bathroom

This well-appointed bathroom features a combination of contemporary tiles and a neutral colour palette, creating a bright and spacious atmosphere. The layout includes a bath for relaxation and a separate area for essential bathroom facilities, ensuring functionality. Natural light filters in through a window, providing ventilation and enhancing the overall brightness of the space. The floor is finished with a durable material, complementing the design and making it easy to maintain. The decor is complemented by a selection of soft accessories, adding a touch of comfort to the room.

Paved Terrace

This outdoor space features a spacious patio area, ideal for enjoying fresh air and outdoor entertaining. The surrounds include well-maintained greenery, providing a sense of privacy and tranquillity. The layout allows for ample natural light and offers a pleasant view of the garden area. The surface is paved, ensuring durability and ease of maintenance, making it a versatile area for various uses. Sliding patio doors provide access to the lounge/dining room.

Rear Garden

A fabulously proportioned and very private and enclosed rear garden with mature hedgerow and brick wall borders. The garden is laid predominantly to lawn with planted borders.

Agents Opinion

This spacious detached bungalow located on one of Rhiwbina's most desirable addresses offers exceptional scope for modernisation and/or extension if so desired. The property sits on a substantial plot and has the stream border to the westerly side of the garden. Internally the property appears to be in very good order and offers very well-proportioned rooms throughout. To the front is a sizeable garden adjacent to the driveway that provides ample parking and a detached garage. To the rear is a large private terrace and lengthy rear garden laid predominantly to lawn. Definitely one not to be missed.

Council Tax Band : F

EPC for Wenallt Road, Cardiff, CF14

EPC graph for Wenallt Road, Cardiff, CF14

Stamp duty calculation

See full breakdown

Total LTT due

Below is a breakdown of how the total amount of LTT was calculated

Up to £0k (Percentage rate 0 %)

Above £0k and up to £0k (Percentage rate 0 %)

Above £0k and up to £0k (Percentage rate 0 %)

Above £0k and up to £0k (Percentage rate 0 %)

Above £0k and up to £0m (Percentage rate 0 %)

Above £om (Percentage rate 0 %)

Please note: This is for illustrative purposes only. The above calculator should not be relied upon when making financial decisions. Please seek advice from a specialist financial provider.

Local Schools

Location

Street Map

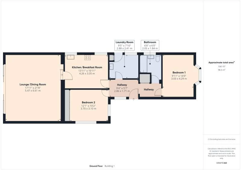
Floor Plans

Floorplan

Arrange a Viewing

Arrange a Viewing

Mortgage Calculator

Mortgage Details

Results

IMPORTANT NOTICE

Descriptions of the property are subjective and are used in good faith as an opinion and NOT as a statement of fact. Please make further specific enquires to ensure that our descriptions are likely to match any expectations you may have of the property. We have not tested any services, systems or appliances at this property. We strongly recommend that all the information we provide be verified by you on inspection, and by your Surveyor and Conveyancer.

Main
Rear Garden
Lounge/Dining Room
Kitchen/breakfast room
Bedroom 1
Driveway & Front Entrance
Front Garden
Detached Garage
Main Entrance
Entrance Hallway
Bedroom 1
Bathroom
Laundry Room
Bedroom 2
Bedroom 2
Kitchen/breakfast room
Lounge Area
Dining Area
Paved Terrace
Rear Garden
Rear Garden
Rear Garden
Rear Garden
Paved Terrace
Main
Rear Garden
Lounge/Dining Room
Kitchen/breakfast room
Bedroom 1
Driveway & Front Entrance
Front Garden
Detached Garage
Main Entrance
Entrance Hallway
Bedroom 1
Bathroom
Laundry Room
Bedroom 2
Bedroom 2
Kitchen/breakfast room
Lounge Area
Dining Area
Paved Terrace
Rear Garden
Rear Garden
Rear Garden
Rear Garden
Paved Terrace

Fees

Letting Fee Information

The asking rent does not include letting fees. Our standard administration fee (which covers general administration and preparation of paperwork) is £xxx (£xxx+VAT). A security deposit, usually equivalent to six weeks rent, is also payable.

Depending on your circumstances and the property you select, one or more of the following may also be charged to you upfront;

Fees may be charged on a per person or per property basis, please call us on 029 20 616 200