Back to Results

Sold STC Lon-y-deri, Cardiff, CF14 Guide Price £625,000

4 Bedroom Semi Detached Sold STC Mortgage Calculator

Call Us: 029 20 616 200

Whats Your Home Worth? View Brochure

Property Features

Enviably located and extremely spacious 4 bed family home

Modern open-plan living/kitchen/dining room

Additional front reception room

Loft conversion bedroom 1 with en-suite w/c

3 further excellent size bedrooms

Family bathroom + ground floor utility w/c

Southerly facing rear garden with garden pod/home office

Beautifully presented and well-maintained throughout

First class school catchments

MUST BE VIEWED

Freehold

Description

Sold via our exclusive Edwards & Co OFF MARKET approach

*Beautifully presented and extended 4 bedroom family home in the very heart of Rhiwbina* Edwards and Co are delighted to offer for sale this spectacular semi-detached property overlooking the central green of Lon y Deri. The property offers stylish and spacious accommodation and lovely gardens. Not to be missed.

Entrance Porch

Parquet floor, double glazed leaded glazed windows to front, composite part glazed front door, glazed door to entrance hallway.

Entrance Hallway

Original parquet wood block floor, picture rails, radiator, staircase to first floor, door to principal reception room.

Front Garden & Entrance

Block paved pathway to front porch, lawn, selection of maturing trees and shrubs.

Front Reception Room

Parquet floor, double glazed leaded glass bay window overlooking green to front, log burning stove, radiator, picture rails, coving, under stairs storage, door to family room/dining room.

Kitchen

Laminate flooring, range of wall and base units in navy and grey, rose gold handles, cooling wine fridge, 5 ring gas hob and 2 double ovens, quartz worktops with inset double sink and Cooker hot tap, Peninsular with pendant lights over, open plan to:

Family room/dining room

Bright and spacious open-plan central hub of the home described as follows:

Dining Area

Wood panelling to walls, double glazed window to side, wood burning stove with marble hearth, radiator, 2 large Velux windows, 2 double glazed windows to side, laminate floor in Herring bone pattern, bi folding doors to rear garden.

Family Room

The bright modern decor continues through from the dining area, window to side, open fireplace with log burner, door to hallway.

Utility Room/WC

Space for washing machine and dryer, additional storage cupboards, laminate floor, door to Ground Floor WC - ceiling spotlights, wall mounted radiator, storage cupboard, wash hand basin, wc, double glazed window in obscure glass to rear.

Ground Floor WC

As previously described.

First Floor Landing

Light, bright decor with carpeted staircase from ground floor. Doors to bedrooms 2, 3 and 4 plus family bathroom. Staircase to second floor bedroom 1.

Bedroom 2

Double glazed window with leaded glazing to front bay and over looking the green, radiator.

Bedroom 3

Double glazed window to rear, built in wardrobes, radiator.

Bedroom 4

Leaded double glazed windows over looking front, radiator.

Family Bathroom

Velux window, storage cupboards to eaves, white gloss brick effect tiled walls, laminate flooring, bath with shower over and glazed screen, wash hand basin inset storage beneath, wc set into grey panelling.

Staircase to Second Floor

Carpeted stairs, Velux window.

Bedroom 1

Radiator, eaves storage, built in wardrobes, 2 windows over looking rear garden.

En Suite WC

WC, wash hand basin, ceiling spot lights, window to rear

Rear Garden

Laid to lawn, blocked paved pathways, patio, large storage shed, timber framed office/summerhouse with power, light and Internet connection, radiator, double glazed window, ceiling spotlights, additional seating area to rear garden.

Garden Building

Cedar clad bespoke home office/garden studio with sliding patio doors to garden. Power and light, laminate flooring, spotlights.

Stamp duty calculation

See full breakdown

Total LTT due

Below is a breakdown of how the total amount of LTT was calculated

Up to £0k (Percentage rate 0 %)

Above £0k and up to £0k (Percentage rate 0 %)

Above £0k and up to £0k (Percentage rate 0 %)

Above £0k and up to £0k (Percentage rate 0 %)

Above £0k and up to £0m (Percentage rate 0 %)

Above £om (Percentage rate 0 %)

Please note: This is for illustrative purposes only. The above calculator should not be relied upon when making financial decisions. Please seek advice from a specialist financial provider.

Local Schools

Location

Street Map

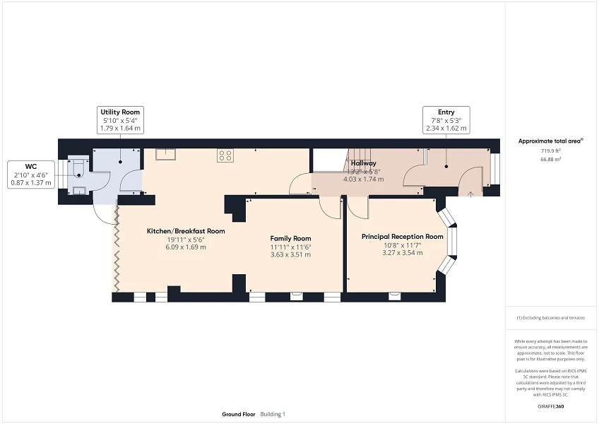
Floor Plans

Ground Floor

Virtual Tour

Arrange a Viewing

Arrange a Viewing

This property is currently Sold STC. However, register your details below and we will contact you if it becomes available again.

Mortgage Calculator

Mortgage Details

Results

IMPORTANT NOTICE

Descriptions of the property are subjective and are used in good faith as an opinion and NOT as a statement of fact. Please make further specific enquires to ensure that our descriptions are likely to match any expectations you may have of the property. We have not tested any services, systems or appliances at this property. We strongly recommend that all the information we provide be verified by you on inspection, and by your Surveyor and Conveyancer.

Main
Family room/dining room
Dining Area
Kitchen
Front Reception Room
Front Garden & Entrance
Entrance Porch
Entrance Hallway
Ground Floor WC
Kitchen
Dining Area
Additional Picture
Utility Room/WC
Garden Building
Rear Garden
Rear Garden
Decked Sitting Area
Garden Building
Bedroom 1
Bedroom 1
En Suite WC
First Floor Landing
Staircase to Second Floor
Additional Picture
Bedroom 2
Bedroom 2
Bedroom 3
Bedroom 3
Bedroom 4
Family Bathroom
Family Bathroom
Family Room
Main
Family room/dining room
Dining Area
Kitchen
Front Reception Room
Front Garden & Entrance
Entrance Porch
Entrance Hallway
Ground Floor WC
Kitchen
Dining Area
Additional Picture
Utility Room/WC
Garden Building
Rear Garden
Rear Garden
Decked Sitting Area
Garden Building
Bedroom 1
Bedroom 1
En Suite WC
First Floor Landing
Staircase to Second Floor
Additional Picture
Bedroom 2
Bedroom 2
Bedroom 3
Bedroom 3
Bedroom 4
Family Bathroom
Family Bathroom
Family Room

Fees

Letting Fee Information

The asking rent does not include letting fees. Our standard administration fee (which covers general administration and preparation of paperwork) is £xxx (£xxx+VAT). A security deposit, usually equivalent to six weeks rent, is also payable.

Depending on your circumstances and the property you select, one or more of the following may also be charged to you upfront;

Fees may be charged on a per person or per property basis, please call us on 029 20 616 200